2d CAD plan and a section of electrical room dwg file
Description
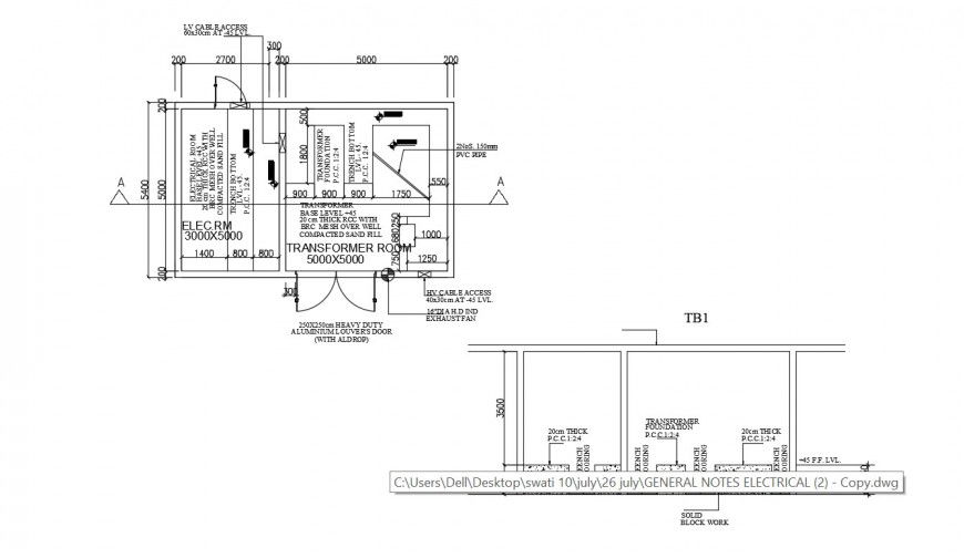
2d CAD plan and a section of electrical room dwg file that shows electrical room plan details with fuse box details and other electrical blocks details . Section line details and sectional details of the electrical room also included in the drawing.
Uploaded by:
Eiz
Luna

